Skip to main content

Townhome Design
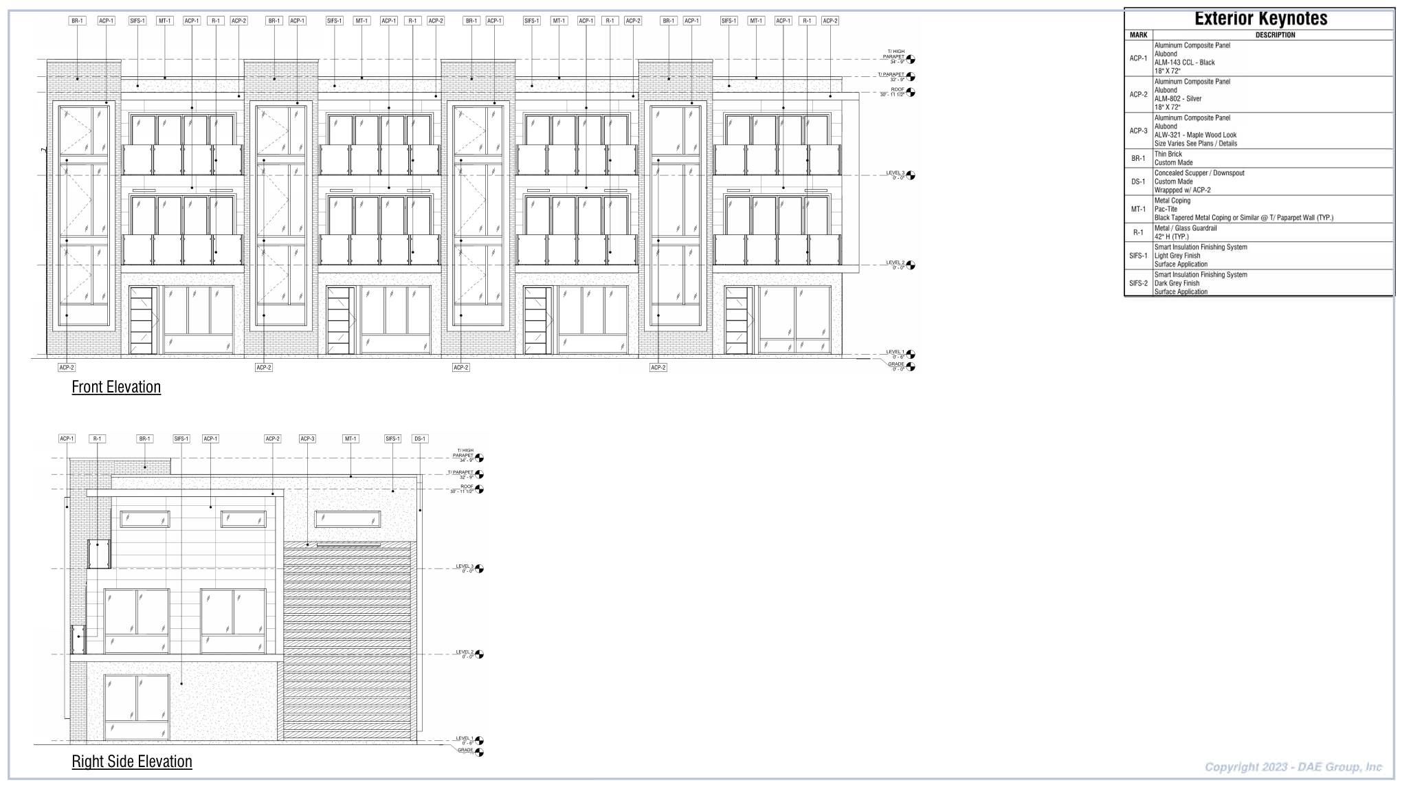
Storehouse Development

Creating a Gateway to High End Living

1830 W Lake Street | Hanover Park, IL

In a collaborative effort, the DAE Group and Storehouse Developments embarked on an exciting journey. DAE Group began by crafting a prototype townhouse, which then evolved into a captivating 80-unit townhome complex nestled in the heart of downtown Hanover Park. The primary goal was to infuse the area with a contemporary, vibrant spirit, catering to a younger demographic, all while cultivating a close-knit communal ambiance. By meticulously aligning the design with local regulations, they seamlessly integrated upscale touches into the layout. As a result, this development not only injects a modern flair into the downtown landscape but also fosters the warm familiarity of a bustling main street, reinvigorating the essence of Hanover Park.